Quadrilocale in vendita

Tarquinia, Viale Tritoni - Lido Di Tarquinia
€ 179.000
3 locali 3 locali
88 Mq 88 Mq
1 bagno 1 bagno

Quadrilocale in vendita

Tarquinia, Viale Tritoni - Lido Di Tarquinia

Descrizione annuncio

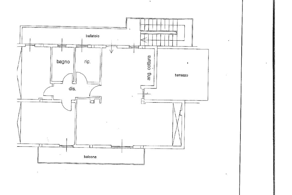
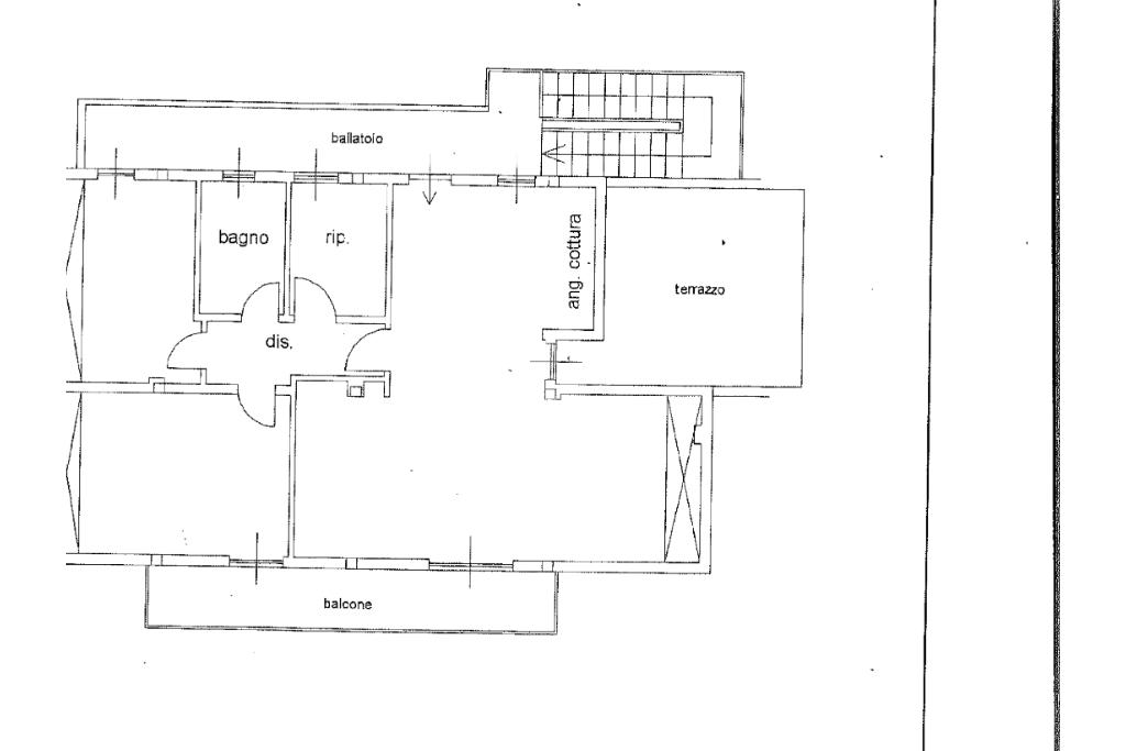
Tarquinia Lido: In posizione tranquilla all'interno di una piccola palazzina esternamente rivestita in cortina per preservarla dall'usura del tempo, disponiamo di un grazioso appartamento all'ultimo piano con terrazzo panoramico abitabile completamente ristrutturato da pochi anni. Gli ampi giardini condominiali a disposizione conducono alla scalinata che porta all'ingresso della casa. Ci accoglie un luminoso soggiorno con zona pranzo e area salotto open space sulla modernissima cucina con penisola e con doppia uscita sulla terrazza, dove si potrà trascorrere piacevoli momenti di relax all'aria aperta rilassandosi con la vista verso le campagne circostanti e Tarquinia, e sul balcone. Il disimpegno conduce alla zona notte composta da una camera da letto matrimoniale con uscita sul balcone, due camerette di cui una adibita totalmente a cabina armadio e un piacevole bagno con doccia. Gli ambienti sono climatizzati per garantire il massimo comfort in ogni stagione, e una stufa a pellet aggiunge un tocco di calore e atmosfera alla zona giorno. Due balconi e una terrazza panoramica offrono spazi esterni perfetti per godere della vista e del clima mite della zona. La disposizione interna è studiata per ottimizzare gli spazi, rendendo l'appartamento funzionale e accogliente. La ristrutturazione recentemente effettuata ha riguardato totalmente l'immobile dai pavimenti e rivestimenti in stile moderno, agli infissi in pvc con vetro isolante, zanzariere e dove ritenute necessarie inferriate, porta blindata, stufa a pellet con canalizzazione del calore verso la zona notte e climatizzatori in tutte le stanze della casa. Una soluzione ideale per chi desidera vivere in un contesto tranquillo senza rinunciare ai comfort moderni.

Mostra tutto

Nelle vicinanze

Trasporto pubblico Trasporto pubblico
Tarquinia
Tarquinia
2,2 Km
Trasporto pubblico
300 m
Piazza delle Naiadi
Piazza delle Naiadi
740 m
Farmacia Farmacia
Farmacia Greco
550 m
Ospedali Ospedali
Ospedali
1,2 Km
Supermercati Supermercati
Supermercati
540 m
Bar Bar
Cin Cin Bar
600 m
Bar 2000
2,9 Km
Ristoranti Ristoranti
Falcioni dal 1955
680 m
Pizzeria 100 Lire
730 m
Ristoranti
1,4 Km
Mostra tutto

Caratteristiche

Rif.:
61162852
Piano:
3 di 3 (ultimo Piano)
Balconi:
2
Terrazzi:
1
Camere da letto:
2
Arredamento:
Parziale
Mostra tutto
Prezzo Prezzo
€ 179.000
Rata mutuo Rata mutuo
€ 843 / mese
Spese annue Spese annue
€ 350
Proponi il tuo prezzoProponi il tuo prezzo

Classe Energetica

D
D
D
D
D
D
D
D
D
EP invernale del fabbricato:
EP estiva del fabbricato:
Anno di costruzione:
1972
Riscaldamento:
Autonomo
Tipo impianto:
A stufa
Tipo alimentazione:
Altro

Ti interessa visionare l'immobile?

Fissa un appuntamento  Fissa un appuntamento

Richiedi informazioni

Clicca su Leggi per aprire l'informativa
* Questi campi sono obbligatori

Calcola il tuo mutuo

Semplice e senza impegno
Anticipo

( % )
Mutuo

( % )

pochi semplici passi

inserisci i tuoi dati
Questionario completato
Grazie per aver richiesto un appuntamento senza impegno con un nostro Consulente del Credito e Assicurativo.

Hai inserito correttamente tutti i dati necessari e a breve riceverai una e-mail con un link da convalidare per inviare i tuoi dati.
Affiliato
Marina Velca Srl
Viale dei Tarquiniensi, SNC 01016 Tarquinia (VT)

Il nostro staff


  • Claudia Petruccioli
    Affiliata
Viale dei Tarquiniensi, SNC 01016 Tarquinia (VT)
Zona: Marina Velca Voltunna - Pian di Spille Golf Club - Tarquinia Lido
Mostra su mappa
Orari: martedi-venerdi 9.30/13.00 16.00/20.00; sabato 9.30/13.00 16.00/19.30; domenica 10.00/13.00.Giorno di chiusura lunedi.
Affiliato
Marina Velca Srl
Viale dei Tarquiniensi, SNC 01016 Tarquinia (VT)

2026 Tecnocasa Franchising S.p.A. - P. IVA 08365160152 - Via Monte Bianco 60/A 20089 Rozzano (MI). Ogni agenzia ha un proprio titolare ed è autonoma. Privacy policy | Policy utilizzo | Cookie policy